Koppelingsweg 5
6673DT Andelst
09:00 - 17:30
Maandag t/m vrijdag
6673DT Andelst
Maandag t/m vrijdag
6678 MB Oosterhout
| Status | Beschikbaar |
| Soort woonhuis | Bungalow |
| Prijs | € 439.000,- k.k. |
| Bouwjaar | 2023 |
| Energielabel | A + |
| Woonoppervlakte | 70 m² |
| Inhoud | 188 m³ |
Welkom bij het ultieme thuisparadijs! Deze prachtige vrijstaande woning op Résidence Tergouw in Oosterhout is een waar meesterwerk van moderniteit, duurzaamheid en luxe. Betreed dit huis en ervaar het onmiddellijke gevoel van thuiskomen, omgeven door de serene schoonheid van een strak aangelegd perceel. Uniek in zijn soort met kwalitatieve afwerkingen, volledige isolatie, onderhoudsvrije opbouw, prachtige architectuur en een heerlijk aangelegde tuin met een riant terras. Deze woning is zo te betrekken!
Deze vrijstaande woning is in 2023 gebouwd en is zeer goed onderhouden en uitermate kwalitatief afgewerkt, zo zien we ze maar weinig! Daarnaast is deze heerlijk gelegen op een ruim perceel van maar liefst 295 m². Een keurig onderhouden park met de Waal in de achtertuin. Wonen in rust, natuur en een bosrijk gebied. Je parkeert hier op eigen terrein.
Het park is direct gelegen aan Nijmegen-Noord waar alle nodige faciliteiten als winkels, scholen, medische voorzieningen, sportverenigingen, etc. aanwezig zijn. Op fietsafstand vinden we ook het natuur- en recreatiegebied De Waaijer waarbij de Lentse Plas ook een officiële zwemlocatie is. Nijmegen centrum is op een steenworp afstand aanwezig en te voet wandelt u heerlijk naar de Waal waar u kunt genieten van de Waalstrandjes en Uiterwaarden. Op korte afstand is ook de Nevengeul aanwezig. Dit is het gebied om te wandelen langs de oevers van de Waal en desbetreffende geul. Mensen vinden hier een plek om uit te waaien. Ook is er voldoende ruimte voor recreatie als roeien en watersport.
Bent u op zoek naar een heerlijk binnen/buiten leven, wonen te midden van natuur? En waar PERMANENTE bewoning is toegestaan! Dan is dit de woning die u zoekt.
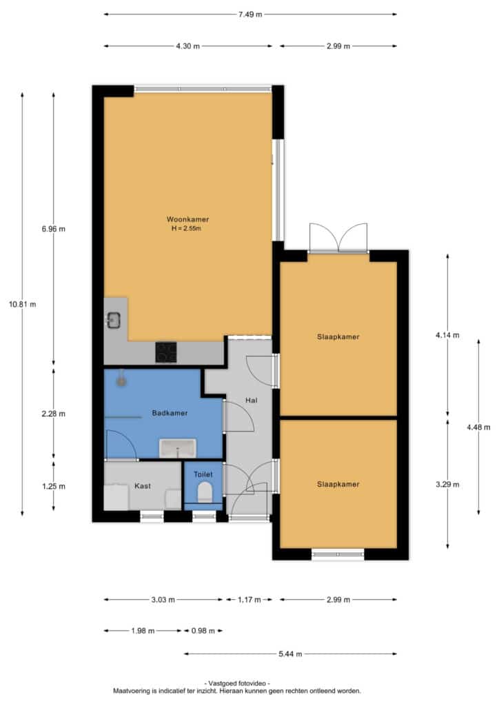
Stap de hal binnen en laat je verwelkomen door de PVC vloer met vloerverwarming, een voorproefje van de stijlvolle afwerking die je door het hele huis zult vinden. Bewonder de uitgebreide moderne meterkast. En vergeet niet het moderne toilet met fontein en de handige garderobe nis, die het gemak en comfort van dit huis verder benadrukken. In deze entree vinden we de toegang tot alle leefruimtes binnen deze woning. Hier is ook een airco geïnstalleerd om te koelen.
In het hart van de woning vind je o.a. de keuken. Deze L-vormige keuken is niet alleen modern, maar ook voorzien van allerlei gemakken. Met een combi-oven, een inductiekookplaat met design afzuigkap, koel/vriescombinatie en spoelbak, zal koken hier een waar genot zijn.
De kunststof ramen met isolerend glas zorgen voor een overvloed aan natuurlijk licht, terwijl de ruime lades en soft-close mechanismen een vleugje luxe toevoegen aan je dagelijkse routine.
De woonkamer is een oase van licht en ruimte, met een hoog plafond, ingebouwde spots en kamerhoge raampartijen die de ruimte overspoelen met natuurlijk licht. Met een aircosysteem en een schuifpui naar het terras, is dit de perfecte plek om te ontspannen en te genieten van het uitzicht op je eigen domein, ongeacht het seizoen.
Maar de goede afwerking stopt hier niet. Beginnend met een tweetal ruime slaapkamers die voldoende ruimte bieden voor een groot bed met (kleding)kast. De master bedroom ligt aan de achterzijde met openslaande deuren naar de heerlijke tuin.
En last but not least, de badkamer – een heerlijke ruimte van rust en verfijning. Met een ruime inloopdouche en een breed wasmeubel, is dit de perfecte plek om te ontspannen. Mooi detail zijn de messing kranen en de vloerverwarming. De badkamer is volledig betegeld en modern afgewerkt. Via de badkamer is nog een technische ruimte te bereiken met wasmachine- en drogeraansluiting en de verwarmingsinstallatie.
De tuin is strak, maar toch zeer sfeervol ingericht. Deze ademt het bos en het buitenleven. Door speelsheid tussen groen en betegeling is hier optimaal voldaan aan het idee waar het leven hier voor staat! Door de verschillende mogelijkheden van terrassen kan je in de zomer kiezen voor zowel schaduw als zon. Verder is de achtertuin nog voorzien van een separate berging die in dezelfde stijl als de woning is opgebouwd. Ideaal voor tuingereedschap, fietsen, etc.
Op Résidence Tergouw zijn er parkkosten van toepassing. De parkkosten bedragen ca. € 2.800,- incl. btw per jaar. Dit bestaat onder andere uit de beheervergoeding, bijdrage slagboom en verwijdering huisvuil. De eenmalige instapvergoeding (entree) op het park bedraagt ca. € 3.135,- incl. btw.
Wonen op Résidence Tergouw betekent wonen in een bosrijke, waterrijke en groene omgeving, vlakbij de Waal en de uiterwaarden. Natuur- en recreatiegebied De Waaijer en zwemlocatie Lentse Plas liggen op korte afstand. Even verder vindt u de Spiegelwaal, ideaal voor kanoën, roeien, windsurfen en zwemmen. Het centrum van Nijmegen ligt slechts 15 minuten fietsen verwijderd, met een bruisend stadsleven vol winkels, restaurants en culturele activiteiten. Tegelijkertijd geniet u hier van het gemak van Nijmegen-Noord: supermarkten, scholen, medische voorzieningen en sportverenigingen zijn allemaal dichtbij. De nieuwe stadsbrug biedt snelle verbindingen met de stad en de regio.
– Kwalitatief en zeer goed onderhouden woning;
– Bouwjaar 2023;
– Duurzaam + energiezuinig gebouwd;
– Gasloos wonen;
– Voorlopig Energielabel A+;
– Volledig geïsoleerd;
– Schuifpui woonkamer voor optimaal binnen/buitenleven;
– Zonnige, besloten tuin;
– Parkeren op eigen terrein;
– Permanente bewoning toegestaan;
– Algemene voorwaarden park Tergouw van toepassing;
– Parkreglement van toepassing;
– Momenteel zijn er ontwikkelingen m.b.t. de aanleg van een nieuw gas- en elektriciteitsnet;
– Direct ligging nabij de Waal;
– Nabij alle voorzieningen van Nijmegen Noord;
– Nabij polikliniek CWZ en Huisartsenpost;
– Op korte afstand van centrum Nijmegen;
– Natuurpark de Waaijer en zwemlocatie Lente Plas om de hoek.
Ben je nieuwsgierig geworden en wil je meer informatie? Bekijk dan ook onderstaande elementen die wij standaard bij al onze woningpresentaties weergeven.
– Professionele woonvideo
– Virtuele tour door de woning
– Interactieve plattegronden
Of download via Funda de brochure en klik op de link naar de website van de woning. Op de website vind je tevens de vragenlijsten en het meetrapport.
Deze informatie is door ons met de nodige zorgvuldigheid samengesteld. Onzerzijds wordt echter geen enkele aansprakelijkheid aanvaard voor enige onvolledigheid, onjuistheid of anderszins, dan wel de gevolgen daarvan.
Vraagprijs: € 439.000,- k.k.
Status: Beschikbaar
Aanvaarding: In overleg
Soort woonhuis: Bungalow
Soort bouw: Bestaande bouw
Bouwjaar: 2023
Soort dak: Lessenaardak
Woonoppervlakte: 70 m²
Perceeloppervlakte: 295 m²
Inhoud: 188 m³
Externe bergruimte: 11 m²
Overige inpandige ruimte: Onbekend
Aantal kamers: 3
Aantal slaapkamers: 2
Aantal badkamers: 1
Voorzieningen: Mechanische ventilatie, tv kabel, glasvezel kabel, natuurlijke ventilatie