Koppelingsweg 5
6673DT Andelst
09:00 - 17:30
Maandag t/m vrijdag
6673DT Andelst
Maandag t/m vrijdag
6543 TX Nijmegen
| Status | Verkocht |
| Soort woonhuis | Eengezinswoning |
| Prijs | € 425.000,- k.k. |
| Bouwjaar | 1958 |
| Energielabel | D |
| Woonoppervlakte | 87 m² |
| Inhoud | 373 m³ |
Starters opgelet! Deze charmante hoekwoning aan de Vuurdoornstraat 5 in Nijmegen biedt alles wat je zoekt: ruimte, licht, comfort én een fijne plek om thuis te komen. Gelegen in de gezellige wijk Heseveld, met het Goffertpark én het stadscentrum van Nijmegen op korte afstand, woon je hier in een groene, rustige omgeving met alle voorzieningen binnen handbereik.
De wijk Heseveld is populair bij jong en oud. Hier woon je rustig, maar wel met de stad om de hoek. Het Goffertpark, hét stadspark van Nijmegen met festivals, wandelroutes en sportmogelijkheden, ligt praktisch om de hoek. Ook scholen, supermarkten, winkels en uitvalswegen zijn snel en gemakkelijk bereikbaar. Binnen 10 minuten fietsen sta je midden in het bruisende centrum van Nijmegen.
Deze woning, gebouwd in 1958, is door de jaren heen goed onderhouden en op diverse punten verbeterd. Zo zijn in 2015 de gevels na-geïsoleerd en is het dak vernieuwd en voorzien van Trespa, wat bijdraagt aan een frisse en moderne uitstraling. De woning beschikt over HR en HR++ beglazing, vloerisolatie, een airconditioning, nieuwe bekabeling, glasvezel, draai-kiep raampartijen en de riolering vanaf de straat is in 2022 vernieuwd. De Cv-installatie is zeer recentelijk (2025) vervangen. In oktober 2024 zijn bovendien de houten delen aan de buitenzijde opnieuw geschilderd. Kortom: een huis waar met liefde in is gewoond!
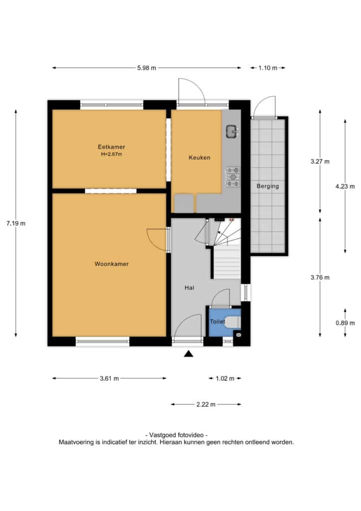
Je komt binnen in een ruime hal met toilet, meterkast, trapopgang en toegang tot de kelder. De afwerking is modern met grijskleurig laminaat. Vanuit de hal loop je door naar de lichte en sfeervolle woonkamer, met zitgedeelte aan de voorzijde en eetgedeelte aan de achterzijde. De grote ramen zorgen voor een prettige lichtinval en de airco zorgt ook in de zomer voor aangenaam binnenklimaat.
Een leuke toog geeft toegang tot de open keuken in L-opstelling, afgewerkt in grijstinten met een licht werkblad. Hier vind je o.a. een 5-pits gasfornuis met afzuigkap, extra brede hete lucht combi-oven, vaatwasser, spoelbak en ruimte voor separate magnetron en koel/vriescombinatie (de huidige is ter overname). Via de keuken loop je zo de tuin in.
De woning beschikt over een nette, praktische kelder op stahoogte, toegankelijk via de hal. In de kelder bevindt zich de wasmachine aansluiting en nieuwe CV installatie. Evenals voldoende ruimte om al je voorraad op te bergen.
Op de eerste verdieping vind je twee ruime slaapkamers en een derde kleinere kamer die uitstekend dienst kan doen als kastenkamer, werkplek of babykamer. Alle ruimtes zijn voorzien van laminaatvloeren en grote ramen die zorgen voor veel daglicht. De slaapkamers zijn netjes afgewerkt en goed in te delen.
De badkamer is opvallend ruim, modern en volledig betegeld. Hier vind je een dubbel wasmeubel, ruime inloopdouche met massagestralen én aparte handdouche, een tweede toilet, én een groot raam voor daglicht en ventilatie. Een heerlijke plek om de dag ontspannen te beginnen of af te sluiten.
De besloten achtertuin van bijna 15 meter diep en op het zuidwesten gelegen, is werkelijk een verlengstuk van je woning. Door de gunstige ligging geniet je hier de hele dag van de zon, met zowel zonnige als schaduwrijke zitplekken. Dankzij de twee zonneschermen met een uitval van bijna 3 meter blijft het binnen ook in de zomer aangenaam koel. De tuin is fraai ingericht met een afwisseling van bestrating, vijverpartij, groen, borders, (fruit)bomen en een regenton voor de duurzaamheid. Achterin vind je een hardhouten berging – ideaal voor fietsen of tuingereedschap en aan de zijkant van de woning bevindt zich nog een bij-schuurtje. Beide afgewerkt met een kwalitatief golfplaten dak.
Of je nu starter bent of gewoon op zoek bent naar een goed onderhouden woning op een fijne plek in Nijmegen: deze hoekwoning in Heseveld biedt ontzettend veel woonplezier. Kom sfeer proeven en laat je verrassen door de ruimte, het comfort en de fijne locatie!
– Goed onderhouden;
– Goed geïsoleerd;
– Na-isolatie gevels 2015;
– Dak vernieuwd 2015;
– CV installatie 2025;
– HR + HR++ beglazing;
– Vloerisolatie;
– Deels kunststof kozijnen;
– Airconditioning;
– Nieuwe bekabeling in en rond de woning;
– Riolering vernieuwd 2022;
– Schilderwerk oktober 2024;
– Nabij de nodige voorzieningen;
– Nijmegen centrum op 10 min. fietsafstand;
– Goffertpark op 9 min. fietsafstand.
Ben je nieuwsgierig geworden en wil je meer informatie? Bekijk dan ook onderstaande elementen die wij standaard bij al onze woningpresentaties weergeven.
– Professionele woonvideo
– Virtuele tour door de woning
– Interactieve plattegronden
Of download via Funda de brochure en klik op de link naar de website van de woning. Op de website vind je tevens de vragenlijsten en het meetrapport.
Deze informatie is door ons met de nodige zorgvuldigheid samengesteld. Onzerzijds wordt echter geen enkele aansprakelijkheid aanvaard voor enige onvolledigheid, onjuistheid of anderszins, dan wel de gevolgen daarvan
Vraagprijs: € 425.000,- k.k.
Status: Verkocht
Aanvaarding: In overleg
Soort woonhuis: Eengezinswoning
Soort bouw: Bestaande bouw
Bouwjaar: 1958
Soort dak: Plat dak
Woonoppervlakte: 87 m²
Perceeloppervlakte: 178 m²
Inhoud: 373 m³
Externe bergruimte: 6 m²
Overige inpandige ruimte: 12 m²
Aantal kamers: 4
Aantal slaapkamers: 3
Aantal badkamers: 1
Voorzieningen: Tv kabel, buitenzonwering, airconditioning, natuurlijke ventilatie