Koppelingsweg 5
6673DT Andelst
09:00 - 17:30
Maandag t/m vrijdag
6673DT Andelst
Maandag t/m vrijdag
6675 AM Valburg
| Status | Beschikbaar |
| Soort woonhuis | Eengezinswoning |
| Prijs | € 350.000,- k.k. |
| Bouwjaar | 1968 |
| Energielabel | C |
| Woonoppervlakte | 87 m² |
| Inhoud | 351 m³ |
Deze centraal gelegen gezinswoning met 3 slaapkamers en een fraai aangelegde achtertuin is gelegen op een heerlijke en groenrijke locatie. Wonen in rust en ruimte met veel privacy in deze praktische tussenwoning. Gelegen in het hart van het Betuwse dorp Valburg met voorzieningen op korte afstand nabij. Woning met veel lichtinval, neutrale afwerking, dubbele beglazing, ruime houten schuur en hobbyruimte en heerlijke diepe achtertuin met mogelijkheden. Op een geschat perceel van 320 m² biedt u dit nog vele mogelijkheden. (perceel moet nog worden ingemeten op kosten van de koper).
LET OP! Bij deze woning is sprake van een voorrangsregeling: huurders die een sociale huurwoning huren van een woningcorporatie in Gemeente Overbetuwe of Gemeente Lingewaard (Woonstichting Valburg, Woningstichting Heteren, Vivare, Waardwonen) krijgen tot en met 08 maart 2026 voorrang bij verkoop. Vraag ons om meer informatie omtrent deze regeling.
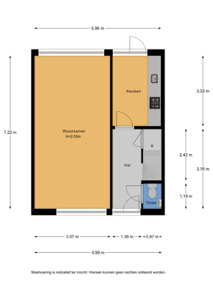
Bij binnenkomst in deze tussenwoning zien we dat de woning zeker in de loop der jaren op sommige vlakken is gemoderniseerd. Naast de vaste trap naar de verdieping vinden we hier het toilet. Een leuk detail die het bouwjaar weer geeft is de provisie kelder onder de trap. De hal is verder afgewerkt met een vloerbedekking en biedt toegang tot de open keuken.
De open keuken is direct via de hal bereikbaar en biedt diverse mogelijkheden qua indeling. De keuken is ruim en praktisch opgezet met een neutrale uitstraling.
Het aanrechtblad is van kunststof en de wand is betegeld. De keuken is in een rechte vorm opgesteld met een 4 pits gasfornuis met afzuigkap en een spoelbak. Voldoende boven- en onderkasten zorgen voor de nodige bergruimte. Via de keuken is de tuin bereikbaar.
Het leefgedeelte strekt zich uit over de gehele diepte van de woning en kan worden opgedeeld in een zit- en eethoek. Uiteraard kunt u dit geheel naar eigen wens indelen. Het betreft een woonkamer met veel lichtinval door de grote raampartijen in iedere gevel. Dit gedeelte van de woning is netjes en neutraal afgewerkt. Extra fijn is de dubbele beglazing over de gehele woonlaag.
De overloop op de verdieping biedt toegang tot 3 ruime slaapkamers en een nette badkamer. Alle slaapkamers zijn voorzien van vloerbedekking. Alle kamers hebben voldoende openslaande raampartijen wat het wooncomfort verhoogt. Tevens is ook deze verdieping volledig afgewerkt met neutraal schilderwerk en dubbele beglazing. De slaapkamers bieden allen voldoende ruimte voor een bed met (kleding)kast. De badkamer is netjes en eenvoudig opgezet en momenteel ingericht met een douche, wastafel en toilet. Netjes betegeld.
Middels een vaste trap is de bergzolder van deze woning bereikbaar. Met een hoogte van 2.14 meter zijn er zeker mogelijkheden tot het realiseren van een extra kamer. Maar ook als opslagruimte biedt deze zolder heerlijk veel ruimte.
De achtertuin is fraai aangelegd en biedt bovenal rust en privacy. Een tuin op het zuidoosten en groen- en kleurrijk ingericht. Een zonnescherm zorgt voor schaduw in huis. Een mooie bestrating in combinatie met borders en een verrassend gazon. De diverse borders maken het tot een sfeervol geheel. Er is een houten berging aanwezig voor de nodige opslag.
Achter de berging ligt een verrassend stuk tuin die bij de woning hoort. Hierdoor is de totale diepte van de tuin circa 33 meter. Ongekend voor een tussenwoning! En uiteraard biedt dit vele mogelijkheden van een gewoon lekker voetbalveldje met de (klein)kinderen tot een moestuin om eindelijk die ene hobby uit te oefenen. Hier kunt u ten alle tijden van uw eigen rijkdom genieten.
Bent u op zoek naar landelijke charme in combinatie met een dorps karakter, maar niet te ver van alle grotere voorzieningen? Dan is Valburg ’the place to be’ voor u! Valburg is een bewogen en actief dorp waar men geniet van carnaval of een voetbalwedstrijd bij de plaatselijke vereniging en waar je elkaar kent, niet alleen van gezicht maar ook bij naam.
In Valburg vinden we o.a. een supermarkt, cafetaria, basisschool, kinderopvang, horeca, bistro, zalencentrum, toneel, tennis en voetbalvereniging. Wonen in Valburg nabij de uitvalswegen A50 en A15 richting de steden Arnhem, Nijmegen en Tiel is als wonen in de schaduw van de grote stad maar dan met de bescherming van het dorpse buitenleven. Binnen een aantal minuten ben je overigens ook in het naburige dorp Elst waar werkelijk alle winkel- en openbaar vervoer voorzieningen aanwezig zijn. In de directe omgeving van dit woonhuis kan je heerlijk wandelen bij park Watergoed waar je in de zomer ook heerlijk kunt zwemmen. Ietwat verder ligt park Lingezegen. Dit betreft een landschapspark waar je heerlijk kunt profiteren van de vele mogelijkheden tot recreëren.
Bent u op zoek naar een leuke woning met een diep perceel en volop potentie? Kom dan kijken en ontdek de van Welderenstraat 5 in Valburg zelf!
– Nette woning;
– Isolerende beglazing;
– Energielabel C;
– 3 slaapkamers;
– Ruim perceel van ca. 320 m² (deze dient op kosten van de koper nog te worden uitgemeten);
– Voorrangsregeling van toepassing t/m 08 maart 2026;
– Projectnotaris Notarissen Elst te Elst;
– Ouderdomsclausule, asbestclausule + niet zelfbewoningsclausule van toepassing;
– Zelfbewoningsplicht van toepassing;
– Geen vragenlijst + lijst van zaken aanwezig;
– Per direct beschikbaar;
– Nabij uitvalswegen A15 en A50;
– Nabij winkelvoorzieningen;
– Nabij de Waal en recreatiegebied Watergoed gelegen.
Ben je nieuwsgierig geworden en wil je meer informatie? Bekijk dan ook onderstaande elementen die wij standaard bij al onze woningpresentaties weergeven.
– Professionele woonvideo
– Virtuele tour door de woning
– Interactieve plattegronden
Of download via Funda de brochure en klik op de link naar de website van de woning. Op de website vind je tevens de vragenlijsten en het meetrapport.
Deze informatie is door ons met de nodige zorgvuldigheid samengesteld. Onzerzijds wordt echter geen enkele aansprakelijkheid aanvaard voor enige onvolledigheid, onjuistheid of anderszins, dan wel de gevolgen daarvan.
Vraagprijs: € 350.000,- k.k.
Status: Beschikbaar
Aanvaarding: In overleg
Soort woonhuis: Eengezinswoning
Soort bouw: Bestaande bouw
Bouwjaar: 1968
Soort dak: Zadeldak
Woonoppervlakte: 87 m²
Perceeloppervlakte: 320 m²
Inhoud: 351 m³
Externe bergruimte: 21 m²
Overige inpandige ruimte: 11 m²
Aantal kamers: 4
Aantal slaapkamers: 3
Aantal badkamers: 1
Voorzieningen: Tv kabel, natuurlijke ventilatie